Design of a modern single-family house

Auriga

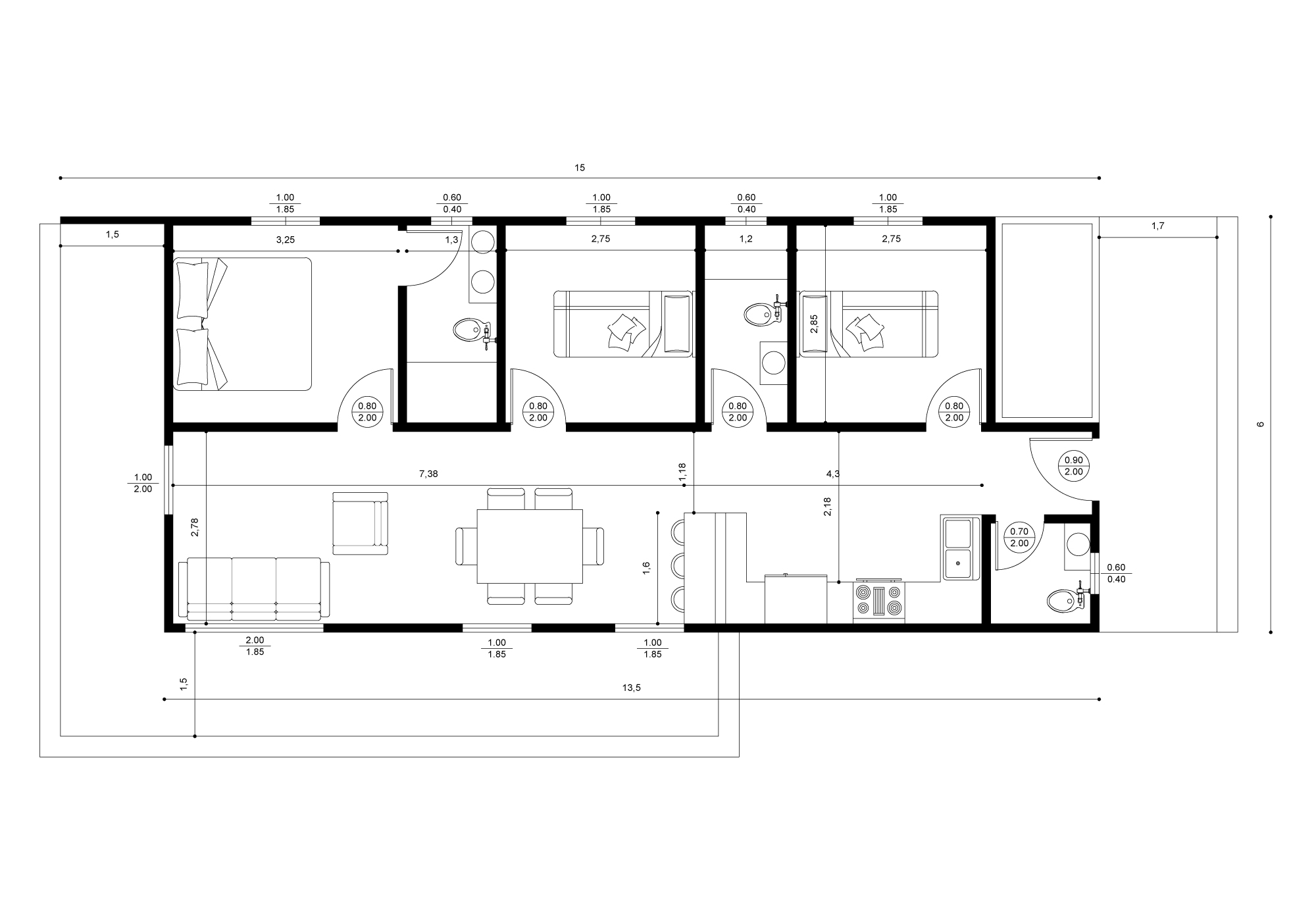
Auriga - all-year-round modular house with a pitched roof. A kitchen with a kitchenette and space for an island, 2 bathrooms and 3 bedrooms will guarantee comfort for any family. A spacious terrace allows you to enjoy time outdoors.

Usable area: 93,51 m2

Building area: 78,28 m2

Download data sheet

Parter

3D projection
Architectural projection

Floor

3D projection
3D projection

Fast and efficient purchase and assembly process

Buying a home has never been so easy. Forget about endless construction sites and lagging renovation teams. Choose a building and we will produce it in a clean, automated hall and deliver it to your place on earth.

Configure your building

Client01

Configure the building for your investment. Choose what you need to create even the most prestigious objects. This will allow us to create a personalized offer tailored to your needs!

Offer preparation

02QMODULAR

On the basis of your configuration, we will prepare an offer for you containing all the information necessary to make a decision on the investment.

Order and permits

Client03

Po złożeniu zamówienia nasi projektanci przygotują dokumentacje konieczną do uzyskania pozwoleń na budowę. w Twojej kwestii jest tylko udanie się do lokalnego architekta w celu uzyskania projektu przestrzennego by uzyskać kompletną dokumentację.

We produce

04QMODULAR

We know that a home is a special space for each of us, which is why we take care of every detail and the highest quality. You can start choosing accessories for your interior - we work really fast!

Media connection

05Client

There is only the matter of connecting the media before you. Go to local suppliers and complete the formalities related to the supply of energy, water and sewage disposal.

Implementation

06QMODULAR

We transport the building to you, and the assembly of the finished facility on the investment site takes from several hours to a maximum of several days.

Contact us
Scroll
Up
PRICING ON INDIVIDUAL REQUEST